Wisconsin Special Properties Is Ready To Help You Buy Or Sell! Call Us Today, (920) 948-4910

4813 Lacy Road, Fitchburg, WI 53711 (MLS # 1999058)

Brought to you by Wisconsin Special Properties LLC
Save to Favorites
Print
Share
PRICE $578,900 dsIDX morgage calculator
BEDS 3
BATHS 2.5
HOME SIZE 2,444 sqft
LOT SIZE 4,356 sqft

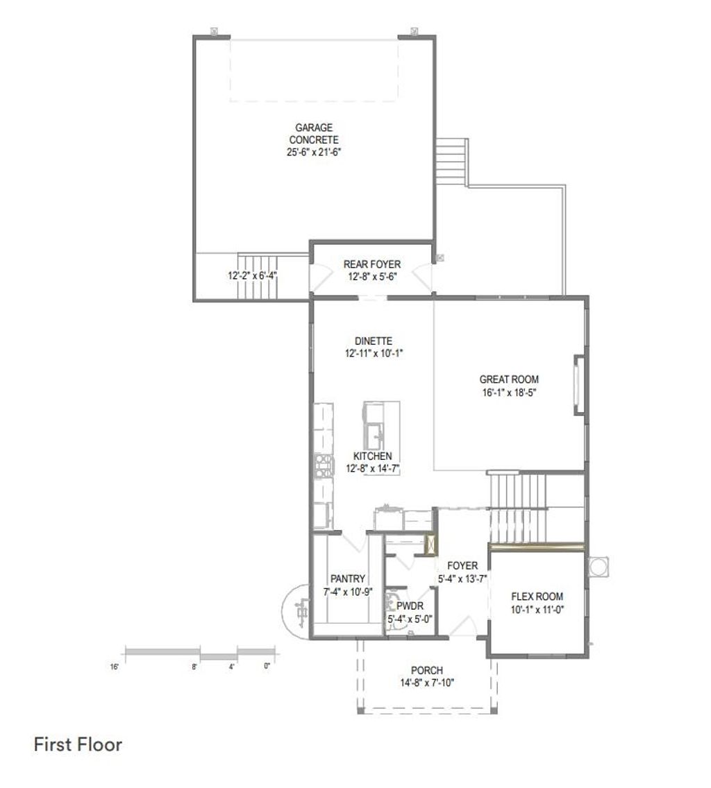
Move-In Ready NEW CONSTRUCTION! The Mulberry offers 2-story open-concept living w/ a rear 2+car garage w/ extra space, an oversized front porch & tons of curb appeal in the front of the home! The main level boasts a spacious Great Room w/ Fireplace which steps out onto your porch overlooking your landscaped low-maintenance yard. The Dining area & spacious Kitchen are ideal for hosting, leading to a HUGE pantry. Main floor flex room is a great size. Upstairs offers 3 bedrooms including a large Primary retreat w/ Cathedral Ceiling, Large walk in closet & luxury en-suite bath w/ tile shower. Convenient 2nd floor laundry room. Located in Terravessa, a new home community perfect for those looking to get out of the city while still staying connected. Just 12 minutes from downtown! Ready late Aug

LAST UPDATED 9/28/2025 TRACT Terravessa
YEAR BUILT 2025 GARAGE SPACES 2.0
COUNTY Dane STATUS Offer-Show
PROPERTY TYPE(S) Single Family

SCHOOLS
School District Oregon
Elementary School Call School District
Jr. High School Oregon
High School Oregon


ADDITIONAL DETAILS
AIR Central Air
AIR CONDITIONING Yes
APPLIANCES Dishwasher, Disposal, Microwave, Oven, Range, Refrigerator
BASEMENT Full, Sump pump, Yes
FIREPLACE Yes
GARAGE Yes
HEAT Forced Air
HOA DUES 200|Annually
INTERIOR Breakfast Bar, Kitchen Island, Pantry, Vaulted Ceiling(s), Walk-in closet(s)
LOT 4356 sq ft
MLS STATUS Offer-Show
PARKING Garage Door Opener, Attached
STYLE Prairie/Craftsman
SUBDIVISION Terravessa
TAXES 1425
UTILITIES Cable Available
MORTGAGE CALCULATOR
   

TOTAL MONTHLY PAYMENT

0
P
I
*Estimate only
Listed with Tim O'Brien Homes LLC

Information is supplied by seller and other third parties and has not been verified.

Copyright 2025 South Central Wisconsin MLS Corporation. All rights reserved.

IDX information is provided exclusively for consumers’ personal, non-commercial use and may not be used for any purpose other than to identify prospective properties consumers may be interested in purchasing.

This IDX solution is (c) Diverse Solutions 2025.


SATELLITE VIEW



 
CONTACT US ABOUT 4813 LACY ROAD
 / 
We respect your online privacy and will never spam you. By submitting this form with your telephone number you are consenting for Derek Kavanaugh to contact you even if your name is on a Federal or State "Do not call List".