Wisconsin Special Properties Is Ready To Help You Buy Or Sell! Call Us Today, (920) 948-4910

1868 & 1870 Duck Creek Drive, Friendship, WI 53934 (MLS # 2004511)

Brought to you by Wisconsin Special Properties LLC
Save to Favorites
Print
Share

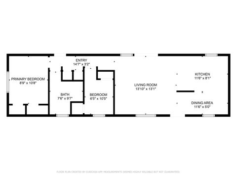
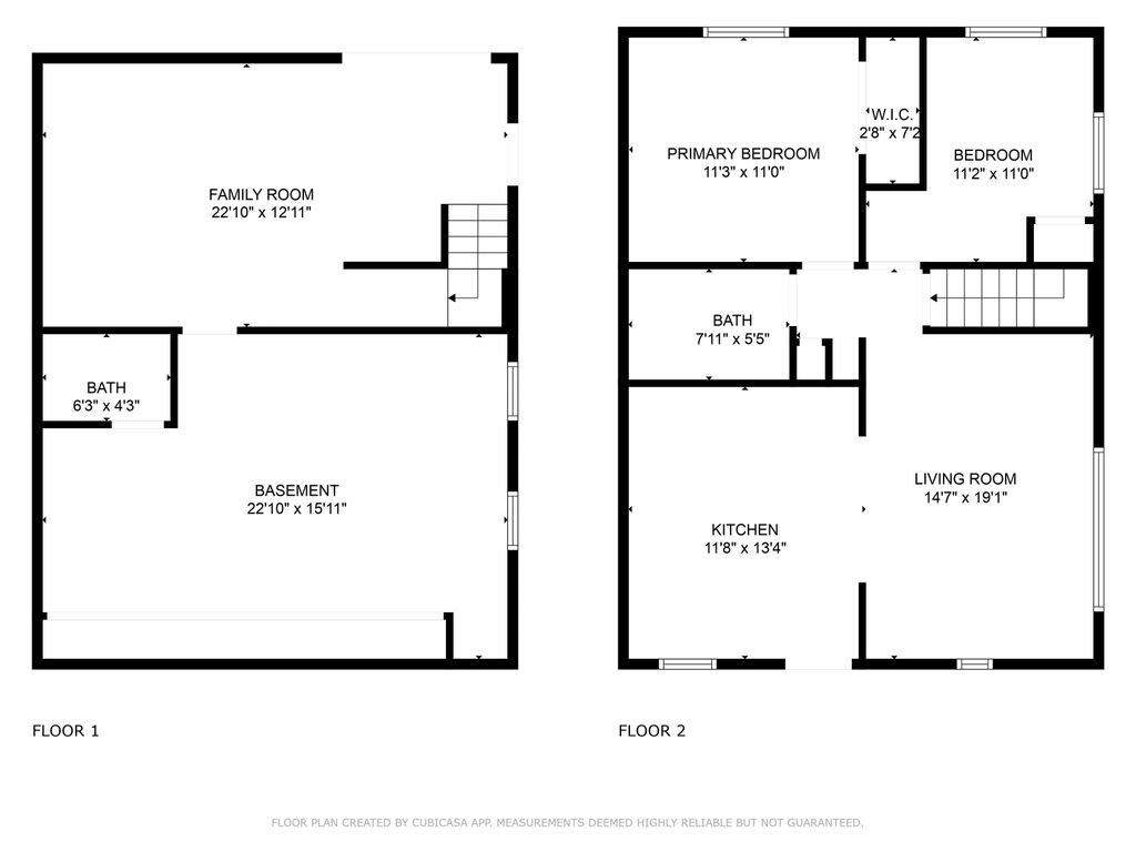
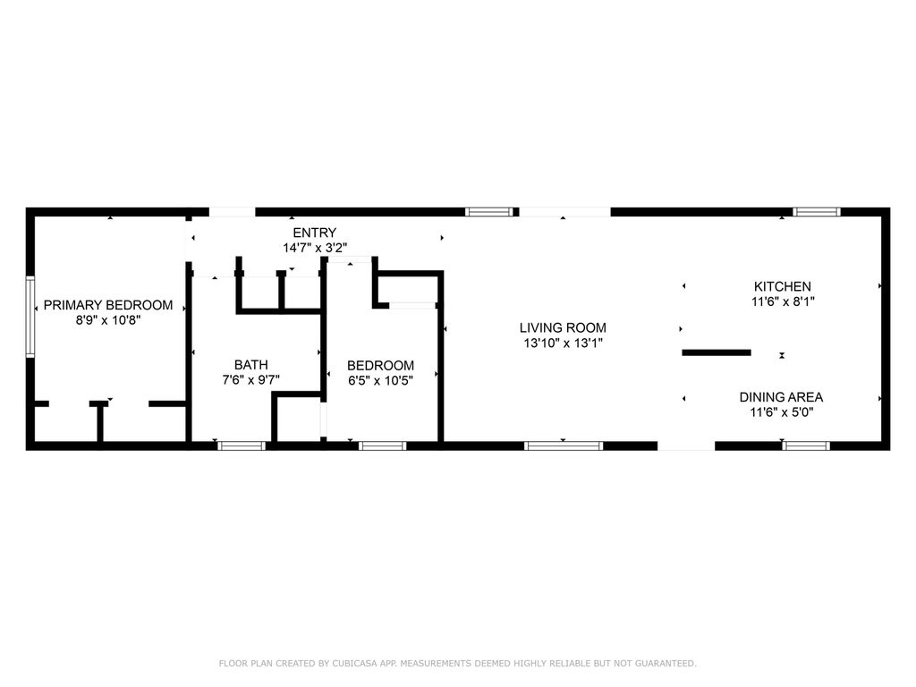
Investment Property Near Castle Rock Lake "Duck Creek Lodge". Established income-generating property great for 1031 exchange! Duck Creek Lodge offers a rare opportunity to own a diversified and already thriving rental business with room to grow. Features 11 updated motel units: 6 currently operated as short-term rentals, and 5 monthly rentals, many units have recent upgrades, including new flooring, updated electrical in most units, and a zoned boiler heating system for efficient operation. Units 1-6 feature connecting doors, providing flexibility for larger groups or families. Coin-operated laundry. Single wide mobile and duplex (2 units) w/2 car attached garage. Seller will be replacing doors and windows on units 1-6 of motel. Ideal property for investors; call to view today!

LAST UPDATED 7/16/2025 YEAR BUILT 0
COUNTY Adams STATUS Active
PROPERTY TYPE(S) Commercial


ADDITIONAL DETAILS
APPLIANCES Dryer
BASEMENT Yes
CONSTRUCTION Wood Siding
HEAT Propane, Radiant
LOT 1.23 acre(s)
MLS STATUS Active
STORIES 2
TAXES 4601
WATER Well, Private
ZONING Commercial
MORTGAGE CALCULATOR
   

TOTAL MONTHLY PAYMENT

0
P
I
*Estimate only
Listed with Castle Rock Realty LLC

Information is supplied by seller and other third parties and has not been verified.

Copyright 2025 South Central Wisconsin MLS Corporation. All rights reserved.

IDX information is provided exclusively for consumers’ personal, non-commercial use and may not be used for any purpose other than to identify prospective properties consumers may be interested in purchasing.

This IDX solution is (c) Diverse Solutions 2025.


SATELLITE VIEW



 
CONTACT US ABOUT 1868 & 1870 DUCK CREEK DRIVE
 / 
We respect your online privacy and will never spam you. By submitting this form with your telephone number you are consenting for Derek Kavanaugh to contact you even if your name is on a Federal or State "Do not call List".