Wisconsin Special Properties Is Ready To Help You Buy Or Sell! Call Us Today, (920) 948-4910

112 S College Street, Adams, WI 53910 (MLS # 2010918)

Brought to you by Wisconsin Special Properties LLC
Save to Favorites
Print
Share
PRICE $195,999 dsIDX morgage calculator
BEDS 3
BATHS 2
HOME SIZE 1,798 sqft
LOT SIZE 12,197 sqft

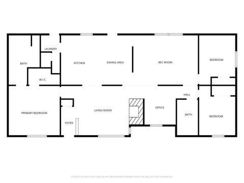
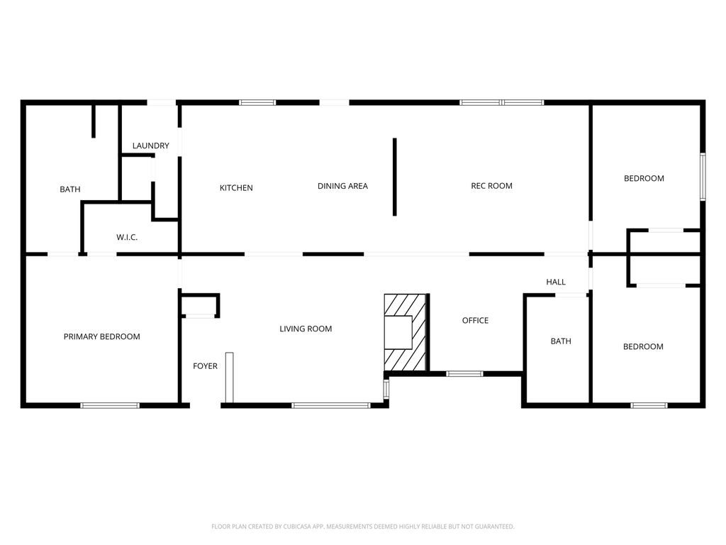
This spacious and very cozy 3-bedroom, 2-bath manufactured home with a bonus room/office, offers approx. 1,800 SF of comfortable living on an oversized 0.28-acre lot in Adams. Inside, you'll find a large living room with fireplace, a cozy rec room"”perfect for relaxing or entertaining"”and a primary bedroom with a walk-in closet. Enjoy the large deck and a partially fenced yard, great for pets or outdoor fun. A detached two-car garage provides plenty of space for vehicles, tools, or toys. Conveniently located near Friendship Lake, shops, and local recreation"” perfect as a year-round residence or a relaxing getaway!

LAST UPDATED 3/1/2026 YEAR BUILT 2004
GARAGE SPACES 2.0 COUNTY Adams
STATUS Active PROPERTY TYPE(S) Mobile/Manufactured

SCHOOLS
School District Adams-Friendship
Elementary School Adams-Friendship
Jr. High School Adams-Friendship
High School Adams-Friendship


ADDITIONAL DETAILS
AIR Central Air
AIR CONDITIONING Yes
APPLIANCES Dishwasher, Microwave, Oven, Range, Refrigerator
GARAGE Yes
HEAT Forced Air
INTERIOR Entrance Foyer, High Speed Internet
LOT 0.28 acre(s)
MLS STATUS Active
PARKING Garage Door Opener, Detached
STYLE Ranch
TAXES 2122
MORTGAGE CALCULATOR
   

TOTAL MONTHLY PAYMENT

0
P
I
*Estimate only
Listed with Castle Rock Realty LLC

Information is supplied by seller and other third parties and has not been verified.

Copyright 2026 South Central Wisconsin MLS Corporation. All rights reserved.

IDX information is provided exclusively for consumers’ personal, non-commercial use and may not be used for any purpose other than to identify prospective properties consumers may be interested in purchasing.

This IDX solution is (c) Diverse Solutions 2026.


SATELLITE VIEW



 
CONTACT US ABOUT 112 S COLLEGE STREET
 / 
We respect your online privacy and will never spam you. By submitting this form with your telephone number you are consenting for Derek Kavanaugh to contact you even if your name is on a Federal or State "Do not call List".