Wisconsin Special Properties Is Ready To Help You Buy Or Sell! Call Us Today, (920) 948-4910

1889 S Dixie Court, Friendship, WI 53934 (MLS # 2011315)

Brought to you by Wisconsin Special Properties LLC
Save to Favorites
Print
Share

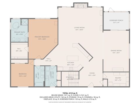
Quality custom-built 4BR/3BA, 4,400 sq ft home on nearly 5 acres with a scenic pond set back off a quiet dead end road"”just steps from Castle Rock Lake and 30 min to Wisconsin Dells. Enjoy vaulted ceilings, 2 stone fireplaces, and a custom kitchen with a large island, double oven and walk in pantry. Main-floor living includes the primary suite, laundry, and kitchen with additional bed and bath with walk-in tub. The spacious primary bedroom features an ensuite bath w/seperate tub and walk-in closet. Relax on the deck or screened porch overlooking the pond. Energy-efficient spray foam insulation and a backup generator. Recent updates: new roof, gutters, water heater and garage door. Peaceful country living close to lake fun! No HOA!

LAST UPDATED 10/24/2025 TRACT Rogers-Plat
YEAR BUILT 2014 GARAGE SPACES 2.0
COUNTY Adams STATUS Active
PROPERTY TYPE(S) Single Family

SCHOOLS
School District Adams-Friendship
Elementary School Adams-Friendship
Jr. High School Adams-Friendship
High School Adams-Friendship


ADDITIONAL DETAILS
AIR Central Air
AIR CONDITIONING Yes
APPLIANCES Dishwasher, Dryer, Microwave, Oven, Range, Refrigerator, Washer
BASEMENT Finished, Full, Walk-Out Access, Yes
FIREPLACE Yes
GARAGE Yes
HEAT Forced Air
INTERIOR Kitchen Island, Pantry, Vaulted Ceiling(s), Walk-in closet(s)
LOT 4.7 acre(s)
MLS STATUS Active
PARKING Garage Door Opener, Attached
STYLE Ranch
SUBDIVISION Rogers-Plat
TAXES 5179
WATERFRONT DESCRIPTION Pond
MORTGAGE CALCULATOR
   

TOTAL MONTHLY PAYMENT

0
P
I
*Estimate only
Listed with Coldwell Banker Belva Parr Realty

Information is supplied by seller and other third parties and has not been verified.

Copyright 2025 South Central Wisconsin MLS Corporation. All rights reserved.

IDX information is provided exclusively for consumers’ personal, non-commercial use and may not be used for any purpose other than to identify prospective properties consumers may be interested in purchasing.

This IDX solution is (c) Diverse Solutions 2025.


SATELLITE VIEW



 
CONTACT US ABOUT 1889 S DIXIE COURT
 / 
We respect your online privacy and will never spam you. By submitting this form with your telephone number you are consenting for Derek Kavanaugh to contact you even if your name is on a Federal or State "Do not call List".