Wisconsin Special Properties Is Ready To Help You Buy Or Sell! Call Us Today, (920) 948-4910

N4296 Alpine Village Lane, Cambridge, WI 53523 (MLS # 2012753)

Brought to you by Wisconsin Special Properties LLC
Save to Favorites
Print
Share

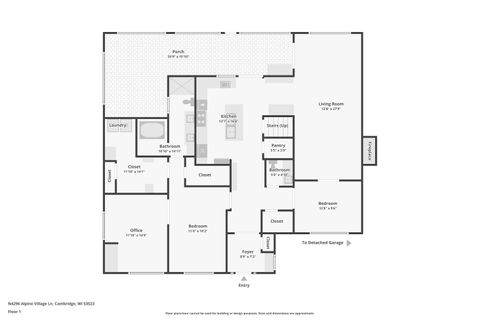
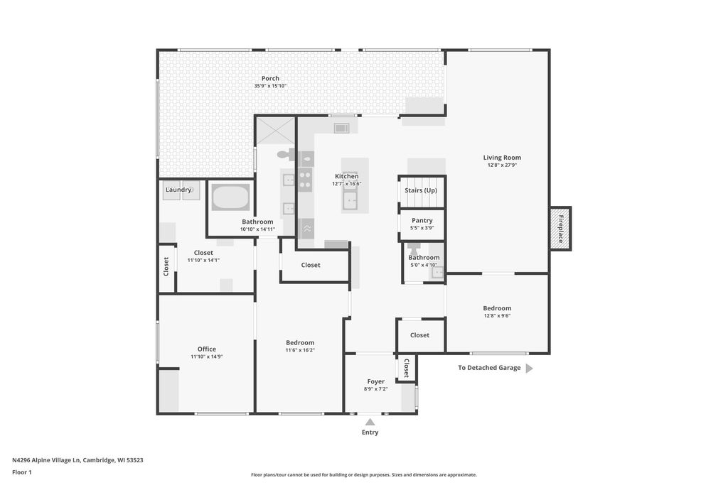
Rare Lake Ripley opportunity! Step inside and feel the compelling force to see more! Timeless home from the 20's blends vintage charm & classy coastal Craftsman vibes with modern updates. Gourmet kitchen shines with large pantry, custom & intentional cabinetry, dual ovens & spacious prep area while offering expansive lake views. Inviting great room features cathedral ceilings & stone woodburning FP, plumbed for gas. Main-floor suite includes spacious bath, WIC, separate office/sitting room & laundry. Many elegant finishes for luxury, combined with efficiency of a new roof and solar panels for value. Imagine yourself enjoying the serenity of the seasons from wrap-around porch & the tranquility of your private shoreline. You won't want to miss this rare opportunity to own a generational home

LAST UPDATED 11/20/2025 YEAR BUILT 1920
GARAGE SPACES 2.0 COUNTY Jefferson
STATUS Active PROPERTY TYPE(S) Single Family

SCHOOLS
School District Cambridge
Elementary School Cambridge
Jr. High School Nikolay
High School Cambridge


ADDITIONAL DETAILS
AIR Central Air
AIR CONDITIONING Yes
APPLIANCES Dishwasher, Dryer, Microwave, Oven, Range, Refrigerator, Washer, Water Softener Rented
BASEMENT Full, Yes
FIREPLACE Yes
GARAGE Yes
HEAT Forced Air
INTERIOR Breakfast Bar, Entrance Foyer, Kitchen Island, Pantry, Vaulted Ceiling(s), Walk-in closet(s)
LOT 0.27 acre(s)
LOT DESCRIPTION Waterfront
MLS STATUS Active
PARKING Detached, Heated Garage
STYLE Prairie/Craftsman
TAXES 9808
UTILITIES Cable Available
WATER ACCESS Ripley
WATERFRONT Yes
WATERFRONT DESCRIPTION Lake
MORTGAGE CALCULATOR
   

TOTAL MONTHLY PAYMENT

0
P
I
*Estimate only
Listed with First Weber Inc

Information is supplied by seller and other third parties and has not been verified.

Copyright 2025 South Central Wisconsin MLS Corporation. All rights reserved.

IDX information is provided exclusively for consumers’ personal, non-commercial use and may not be used for any purpose other than to identify prospective properties consumers may be interested in purchasing.

This IDX solution is (c) Diverse Solutions 2025.


SATELLITE VIEW



 
CONTACT US ABOUT N4296 ALPINE VILLAGE LANE
 / 
We respect your online privacy and will never spam you. By submitting this form with your telephone number you are consenting for Derek Kavanaugh to contact you even if your name is on a Federal or State "Do not call List".