Wisconsin Special Properties Is Ready To Help You Buy Or Sell! Call Us Today, (920) 948-4910

1142 Fawn Court, Grand Marsh, WI 53936 (MLS # 2012848)

Brought to you by Wisconsin Special Properties LLC
Save to Favorites
Print
Share
Listed with Castle Rock Realty LLC

PRICE $100,000 dsIDX morgage calculator
BEDS 2
BATHS 2
HOME SIZE 1,740 sqft
LOT SIZE 2.38 ac

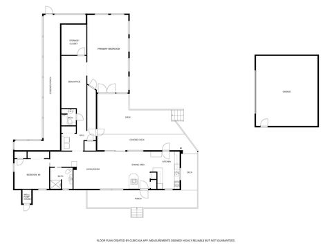
Bring your creative ideas to finish what current owners started in 2024. Two older single wide mobile homes connected to each other in the T shape with large 15x30 addition. 1st Mobile has been remodeled with new flooring, new kitchen counter & fresh paint. Newer Furnace serves 1st Mobile. The 2nd Mobile has new laundry area & updated 2nd bath with tub/shower combo. In that part of the 2nd Mobile you will also find original office/den area & walk in closet. The hallway connects the 2nd Mobile to large addition used as primary bedroom. Newer well pump & newer pressure tank. Few trees too close to the house have been removed for safety. 2 stall garage, 2 small storage sheds & 2.38 acres complete this property. The blue tarp in the back covers awesome storage area for your gardening tools.

LAST UPDATED 2/2/2026 TRACT East Oak Valley
YEAR BUILT 0 GARAGE SPACES 2.0
COUNTY Adams STATUS Sold
PROPERTY TYPE(S) Mobile/Manufactured

SCHOOLS
School District Adams-Friendship
Elementary School Adams-Friendship
Jr. High School Adams-Friendship
High School Adams-Friendship


ADDITIONAL DETAILS
APPLIANCES Dryer, Microwave, Oven, Range, Refrigerator, Washer
FIREPLACE Yes
GARAGE Yes
HEAT Forced Air
LOT 2.38 acre(s)
LOT DESCRIPTION Wooded
MLS STATUS Sold
PARKING Garage Door Opener, Detached
STYLE Ranch
SUBDIVISION East Oak Valley
TAXES 923
MORTGAGE CALCULATOR
   

TOTAL MONTHLY PAYMENT

0
P
I
*Estimate only
Listed with Castle Rock Realty LLC

Information is supplied by seller and other third parties and has not been verified.

Copyright 2026 South Central Wisconsin MLS Corporation. All rights reserved.

IDX information is provided exclusively for consumers’ personal, non-commercial use and may not be used for any purpose other than to identify prospective properties consumers may be interested in purchasing.

This IDX solution is (c) Diverse Solutions 2026.


SATELLITE VIEW



 
CONTACT US ABOUT 1142 FAWN COURT
We respect your online privacy and will never spam you. By submitting this form with your telephone number you are consenting for Derek Kavanaugh to contact you even if your name is on a Federal or State "Do not call List".