Wisconsin Special Properties Is Ready To Help You Buy Or Sell! Call Us Today, (920) 948-4910

306 N Main Street, Orfordville, WI 53576 (MLS # 2013973)

Brought to you by Wisconsin Special Properties LLC
Save to Favorites
Print
Share
PRICE $289,900 dsIDX morgage calculator
BEDS 3
BATHS 2
HOME SIZE 1,787 sqft
LOT SIZE 15,682 sqft

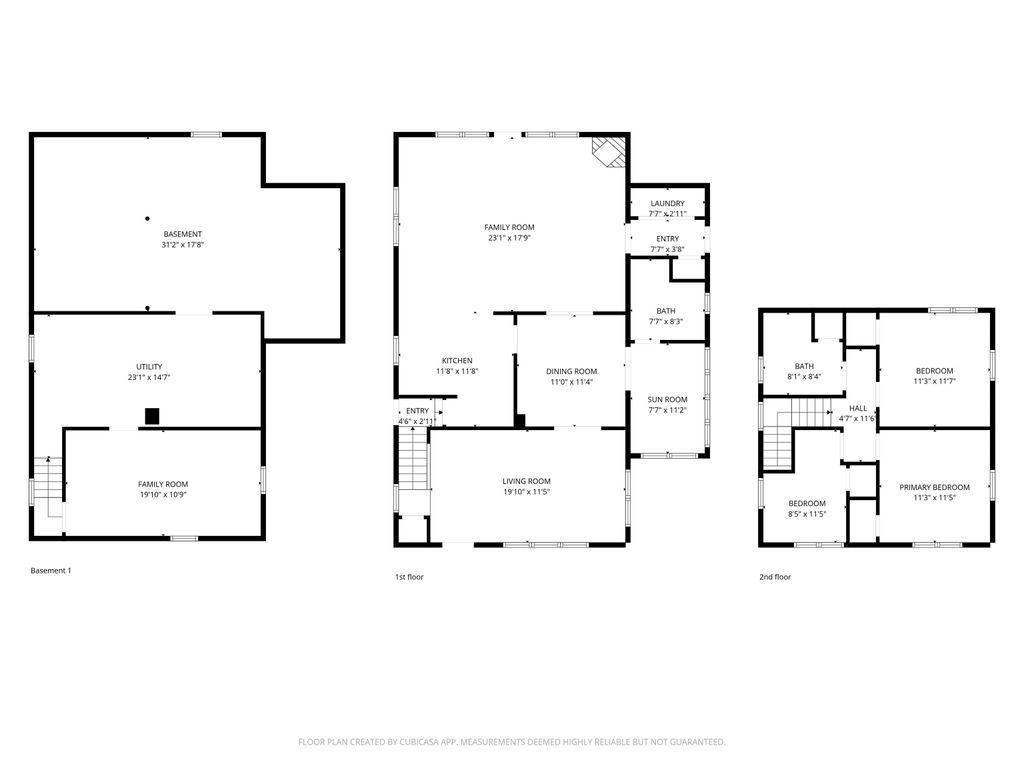
Step into small-town charm with this inviting 3-bedroom, 2-bath home in the heart of Orfordville, offering a thoughtful blend of comfort, updates, and future potential. A spacious kitchen and living room addition completed in 2005 creates a bright, welcoming main living area, enhanced by new main-floor carpeting in 2025. Enjoy outdoor living with both a deck and patio, plus the convenience of a 2-car detached garage. The basement features a large unfinished space (approx. 17' x 31') with an egress window"”ideal for future living space, a rec room, or an additional bedroom. Upstairs bedrooms offer an opportunity to add your personal touch and build equity, all while being close to schools, parks, and local amenities.

LAST UPDATED 12/26/2025 YEAR BUILT 1965
GARAGE SPACES 2.0 COUNTY Rock
STATUS Active PROPERTY TYPE(S) Single Family

SCHOOLS
School District Parkview
Elementary School Parkview
Jr. High School Parkview
High School Parkview


ADDITIONAL DETAILS
AIR Central Air
AIR CONDITIONING Yes
APPLIANCES Dishwasher, Microwave, Oven, Range, Refrigerator, Water Softener Owned
BASEMENT Full, Partially finished, Yes
FIREPLACE Yes
GARAGE Yes
HEAT Forced Air
INTERIOR Breakfast Bar, High Speed Internet
LOT 0.36 acre(s)
MLS STATUS Active
PARKING Garage Door Opener, Detached
STYLE Colonial
TAXES 4303
UTILITIES Cable Available
MORTGAGE CALCULATOR
   

TOTAL MONTHLY PAYMENT

0
P
I
*Estimate only
Listed with Berkshire Hathaway HomeServices True Realty

Information is supplied by seller and other third parties and has not been verified.

Copyright 2026 South Central Wisconsin MLS Corporation. All rights reserved.

IDX information is provided exclusively for consumers’ personal, non-commercial use and may not be used for any purpose other than to identify prospective properties consumers may be interested in purchasing.

This IDX solution is (c) Diverse Solutions 2026.


SATELLITE VIEW



 
CONTACT US ABOUT 306 N MAIN STREET
 / 
We respect your online privacy and will never spam you. By submitting this form with your telephone number you are consenting for Derek Kavanaugh to contact you even if your name is on a Federal or State "Do not call List".