Wisconsin Special Properties Is Ready To Help You Buy Or Sell! Call Us Today, (920) 948-4910

3640 Murwin Circle, Wisconsin Rapids, WI 54494 (MLS # 2016751)

Brought to you by Wisconsin Special Properties LLC
Save to Favorites
Print
Share

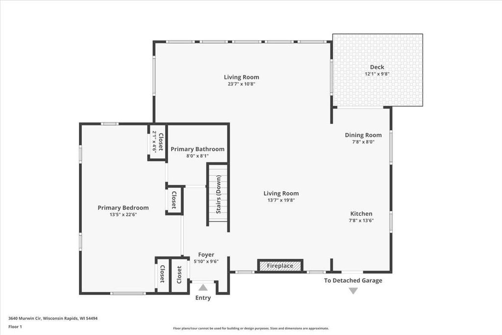
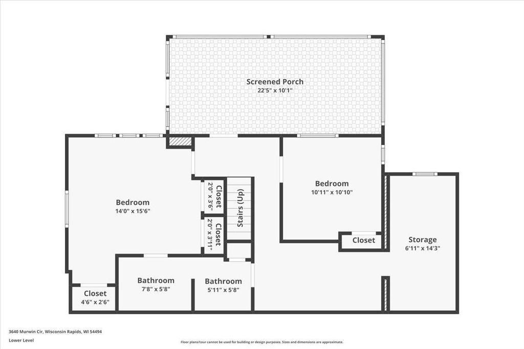
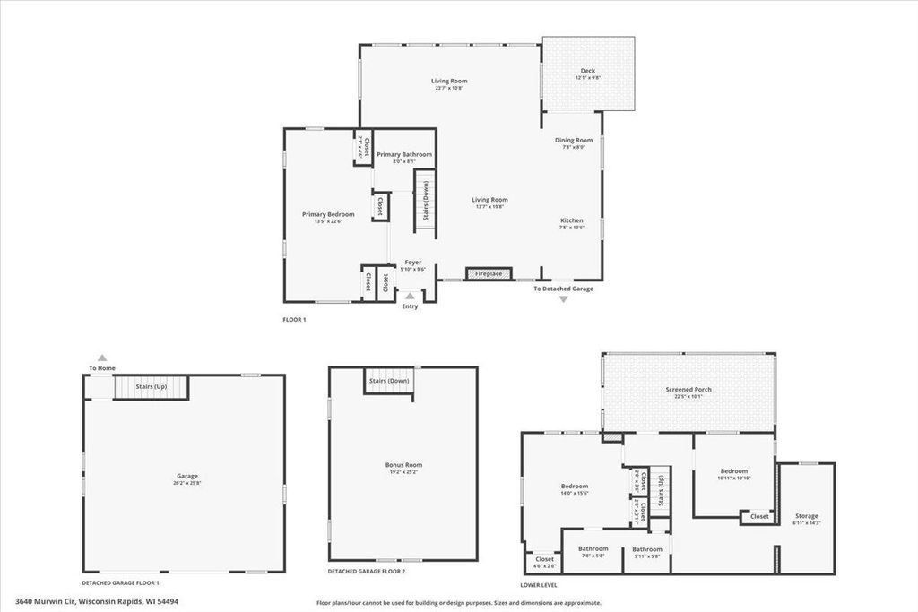
Welcome to this truly unique, fully finished 3-bedroom, 2-bath waterfront home on Two Mile Creek, tucked away on a quiet cul-de-sac! Thoughtfully designed with an open-concept layout, this home features a main-floor primary suite with private en-suite bath, plus a lower-level bedroom conveniently connected to the second full bathroom"”perfect for guests or flexible living. Step outside to enjoy peaceful water views and unforgettable sunsets from the back porch or relax in the charming 3-season room. A private bridge leads to your own small island"”an extra touch of character you won't find every day! The 2.5-stall garage offers ample space, plus a loft above the garage ideal for a game room, band practice, or extra storage. Close to shopping, schools, and parks, this light-filled home blends comfort, convenience, and one-of-a-kind charm. A rare opportunity"”don't miss it!

LAST UPDATED 2/18/2026 YEAR BUILT 1945
GARAGE SPACES 2.0 COUNTY Wood
STATUS Active PROPERTY TYPE(S) Single Family

SCHOOLS
School District Wisconsin Rapids
Elementary School Call School District
Jr. High School Call School District
High School Call School District


ADDITIONAL DETAILS
AIR Central Air
AIR CONDITIONING Yes
APPLIANCES Dishwasher, Disposal, Dryer, Oven, Range, Refrigerator, Washer
BASEMENT Full, Sump pump, Walk-Out Access, Yes
FIREPLACE Yes
GARAGE Yes
HEAT Forced Air
INTERIOR Entrance Foyer, High Speed Internet, Kitchen Island, Vaulted Ceiling(s)
LOT 9583 sq ft
LOT DESCRIPTION Cul-de-sac
MLS STATUS Active
PARKING Detached
STYLE Ranch
TAXES 4256
WATER ACCESS Two Mile Creek
MORTGAGE CALCULATOR
   

TOTAL MONTHLY PAYMENT

0
P
I
*Estimate only
Listed with Realty One Group Haven

Information is supplied by seller and other third parties and has not been verified.

Copyright 2026 South Central Wisconsin MLS Corporation. All rights reserved.

IDX information is provided exclusively for consumers’ personal, non-commercial use and may not be used for any purpose other than to identify prospective properties consumers may be interested in purchasing.

This IDX solution is (c) Diverse Solutions 2026.


SATELLITE VIEW



 
CONTACT US ABOUT 3640 MURWIN CIRCLE
 / 
We respect your online privacy and will never spam you. By submitting this form with your telephone number you are consenting for Derek Kavanaugh to contact you even if your name is on a Federal or State "Do not call List".