Wisconsin Special Properties Is Ready To Help You Buy Or Sell! Call Us Today, (920) 948-4910

E3299 County Road N Road, De Soto, WI 54624 (MLS # 2019274)

Brought to you by Wisconsin Special Properties LLC
Save to Favorites
Print
Share
Listed with Wisconsin Land and Homes LLC

PRICE $200,000 dsIDX morgage calculator
BEDS 2
BATHS 1
HOME SIZE 1,740 sqft
LOT SIZE 21,780 sqft

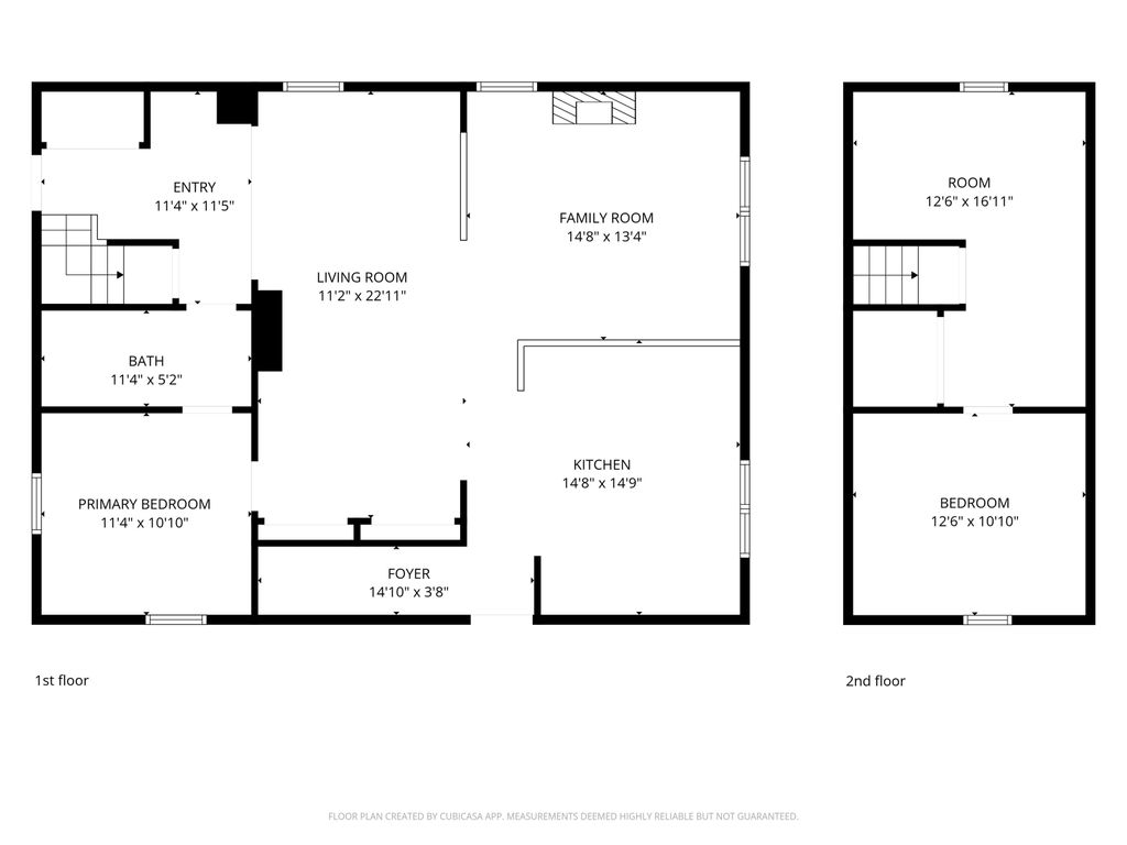
Spacious 2-bedroom log sided home with a newly constructed deck off the back, wrap around porch at the entrance on a half-acre, country setting. This home has had a new metal roof, gutters and furnace in 2023. There is a main floor bedroom as well as laundry, bathroom, a dining area, large kitchen and family room with a wood fireplace. The upper level contains a bedroom and large office area that could be converted back into a bedroom. There's a 24x24 detached garage that is insulated and heated with a new furnace. A portion of the garage and driveway appears to be encroaching on neighboring property.

LAST UPDATED 3/26/2026 YEAR BUILT 1938
GARAGE SPACES 2.0 COUNTY Vernon
STATUS Active PROPERTY TYPE(S) Single Family

SCHOOLS
School District De Soto
Elementary School Prairie View
Jr. High School De Soto
High School De Soto


ADDITIONAL DETAILS
AIR Central Air
AIR CONDITIONING Yes
APPLIANCES Water Softener Owned
BASEMENT Partial, Yes
FIREPLACE Yes
GARAGE Yes
HEAT Forced Air
INTERIOR Entrance Foyer, High Speed Internet
LOT 0.5 acre(s)
MLS STATUS Active
PARKING Detached
STYLE National Folk/Farm
TAXES 2453
MORTGAGE CALCULATOR
   

TOTAL MONTHLY PAYMENT

0
P
I
*Estimate only
Listed with Wisconsin Land and Homes LLC

Information is supplied by seller and other third parties and has not been verified.

Copyright 2026 South Central Wisconsin MLS Corporation. All rights reserved.

IDX information is provided exclusively for consumers’ personal, non-commercial use and may not be used for any purpose other than to identify prospective properties consumers may be interested in purchasing.

This IDX solution is (c) Diverse Solutions 2026.


SATELLITE VIEW



 
CONTACT US ABOUT E3299 COUNTY ROAD N ROAD
 / 
We respect your online privacy and will never spam you. By submitting this form with your telephone number you are consenting for Derek Kavanaugh to contact you even if your name is on a Federal or State "Do not call List".