Wisconsin Special Properties Is Ready To Help You Buy Or Sell! Call Us Today, (920) 948-4910

103 Industrial Drive, Fox Lake, WI 53933 (MLS # 2020536)

Brought to you by Wisconsin Special Properties LLC
Save to Favorites
Print
Share

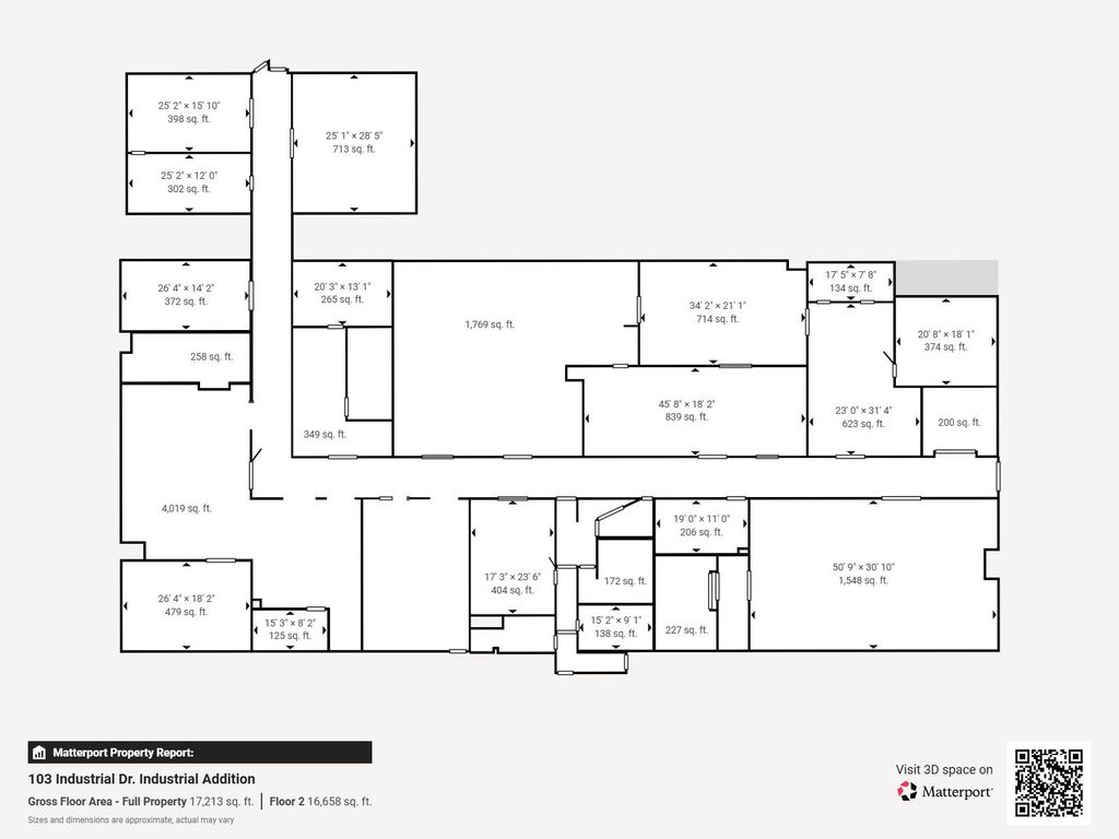
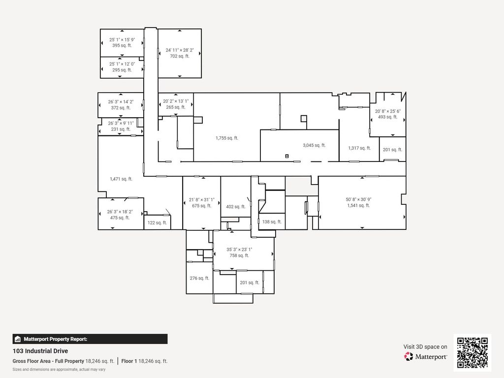
Approximately 18,000 sq. ft. industrial building located on 5.7 acres in the Fox Lake Business Park. The building offers various work and storage areas with non-loadbearing walls allowing flexibility for the new owner's needs. The building includes a loading dock on North side plus additional at grade 12' garage door on South, and approximately 2,000 sq. ft. of office with bathrooms and meeting area. Potential for City incentives through TIF. Prior use was for manufacture of printed circuit boards. The property includes 4" water main, 3 phase 120/208v and 3 phase 227/480v 800A. Natural gas from Alliant Energy can supply 3,000,000 btu/hr @5PSIG. Conveniently located between USH 151 and Interstate 41 to the East and I39/90/94 to the West. Minutes from new META Data Center Virtual Tour Links: Industrial : https://my.matterport.com/show/?m=yAsFN5ECqZh&mls=1 Office: https://my.matterport.com/show/?m=CwMGYNx4MyN&mls=1

LAST UPDATED 4/12/2026 YEAR BUILT 0
COUNTY Dodge STATUS Active
PROPERTY TYPE(S) Commercial


ADDITIONAL DETAILS
AIR Central Air
AIR CONDITIONING Yes
CONSTRUCTION Frame
HEAT Forced Air, Natural Gas, Zoned
LOT 5.78 acre(s)
MLS STATUS Active
SEWER Public Sewer
STORIES 1
TAXES 19445
WATER Public
MORTGAGE CALCULATOR
   

TOTAL MONTHLY PAYMENT

0
P
I
*Estimate only
Listed with Ballweg's Real Estate LLC

Information is supplied by seller and other third parties and has not been verified.

Copyright 2026 South Central Wisconsin MLS Corporation. All rights reserved.

IDX information is provided exclusively for consumers’ personal, non-commercial use and may not be used for any purpose other than to identify prospective properties consumers may be interested in purchasing.

This IDX solution is (c) Diverse Solutions 2026.


SATELLITE VIEW



 
CONTACT US ABOUT 103 INDUSTRIAL DRIVE
 / 
We respect your online privacy and will never spam you. By submitting this form with your telephone number you are consenting for Derek Kavanaugh to contact you even if your name is on a Federal or State "Do not call List".