Wisconsin Special Properties Is Ready To Help You Buy Or Sell! Call Us Today, (920) 948-4910

410 East Hill Parkway, Madison, WI 53718 (MLS # 2020722)

Brought to you by Wisconsin Special Properties LLC
Save to Favorites
Print
Share

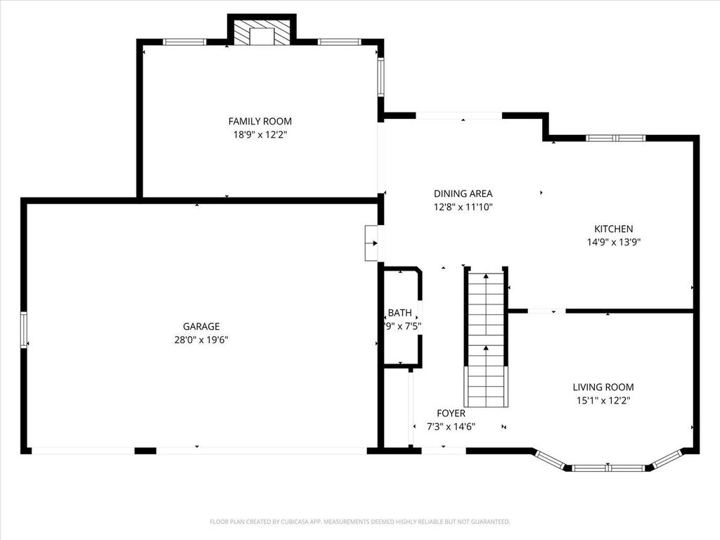
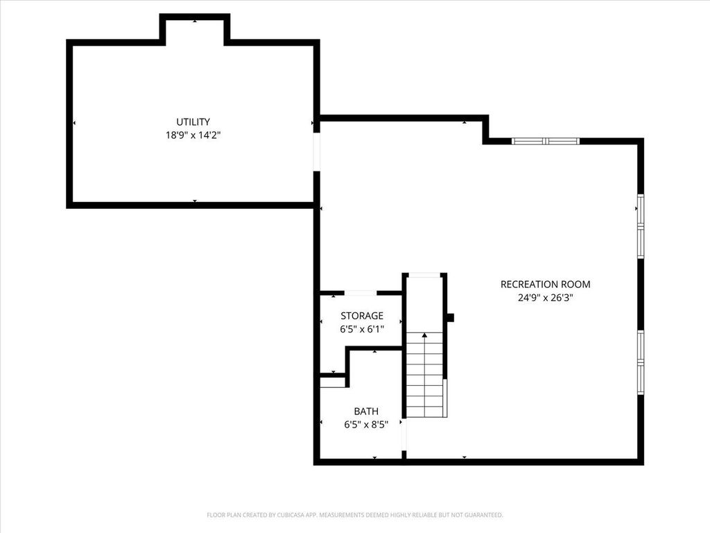
What a home! You will love this 2 story Colonial containing a great floor plan with many features & updates. Vaulted ceiling in the family room with hardwood flooring & gas fireplace, open to the dining & spacious kitchen with center island, updated granite countertops, backsplash, flooring, lighting & appliances. Front flex room with hardwood flooring. Upper level includes primary suite with vaulted ceilings, full bath & double closets along with 2nd & 3rd bedrooms, main bath & laundry. Exposed lower level with high ceilings, 3 windows, finished with a game/rec room, full bath & cedar closet. Large composite deck with pergola for shaded days & enjoying evening sunsets. Step down to the fenced rear yard with raised garden beds and patio area perfect for a campfire. 3 car garage is a BONUS

LAST UPDATED 4/15/2026 TRACT Reston Height
YEAR BUILT 2003 GARAGE SPACES 3.0
COUNTY Dane STATUS Active
PROPERTY TYPE(S) Single Family

SCHOOLS
School District Madison
Elementary School Kennedy
Jr. High School Whitehorse
High School Lafollette


ADDITIONAL DETAILS
AIR Central Air
AIR CONDITIONING Yes
APPLIANCES Dishwasher, Disposal, Dryer, Microwave, Oven, Range, Refrigerator, Washer, Water Softener Owned
BASEMENT Finished, Full, Yes
FIREPLACE Yes
GARAGE Yes
HEAT Forced Air
HOA DUES 200|Annually
INTERIOR Breakfast Bar, High Speed Internet, Kitchen Island, Pantry, Vaulted Ceiling(s)
LOT 8712 sq ft
MLS STATUS Active
PARKING Garage Door Opener, Attached
STYLE Colonial
SUBDIVISION Reston Height
TAXES 8583
UTILITIES Cable Available
MORTGAGE CALCULATOR
   

TOTAL MONTHLY PAYMENT

0
P
I
*Estimate only
Listed with First Weber Inc

Information is supplied by seller and other third parties and has not been verified.

Copyright 2026 South Central Wisconsin MLS Corporation. All rights reserved.

IDX information is provided exclusively for consumers’ personal, non-commercial use and may not be used for any purpose other than to identify prospective properties consumers may be interested in purchasing.

This IDX solution is (c) Diverse Solutions 2026.


SATELLITE VIEW



 
CONTACT US ABOUT 410 EAST HILL PARKWAY
 / 
We respect your online privacy and will never spam you. By submitting this form with your telephone number you are consenting for Derek Kavanaugh to contact you even if your name is on a Federal or State "Do not call List".