Wisconsin Special Properties Is Ready To Help You Buy Or Sell! Call Us Today, (920) 948-4910

1515 Calico Lane, Sun Prairie, WI 53590 (MLS # 2020799)

Brought to you by Wisconsin Special Properties LLC
Save to Favorites
Print
Share

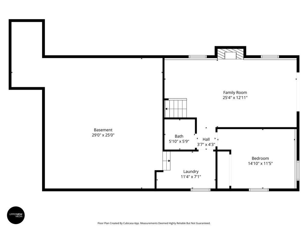
Showings begin 4/18! Updated 4-bedroom, 2.5-bath tri-level home on a spacious corner lot. No detail was missed in this gorgeous home, tucked into a quiet subdivision and offering the perfect blend of space, comfort, and functionality. Enjoy multiple living areas, a large kitchen with a breakfast bar and butlers pantry, mudroom, spacious bedroom closets, an extra-deep 2.5 car flaked garage, ample storage, gas log fire place, and abundant natural light throughout. Step outside to a large deck ideal for relaxing or entertaining, surrounded by perennial flower beds and a spacious yard complete with a storage shed. Conveniently located walking distance to parks and easy access to Hwy 151. For added peace of mind, the home features leaf guards and a 2023 roof with a 10-year warranty. Truly move-in ready.

LAST UPDATED 4/17/2026 YEAR BUILT 1984
GARAGE SPACES 2.0 COUNTY Dane
STATUS Active PROPERTY TYPE(S) Single Family

SCHOOLS
School District Sun Prairie
Elementary School Bird
Jr. High School Patrick Marsh
High School Sun Prairie West


ADDITIONAL DETAILS
AIR Central Air
AIR CONDITIONING Yes
APPLIANCES Dishwasher, Disposal, Dryer, Microwave, Oven, Range, Refrigerator, Washer, Water Softener Owned
BASEMENT Crawl space, Partial, Sump pump, Yes
FIREPLACE Yes
GARAGE Yes
HEAT Forced Air
INTERIOR Breakfast Bar, Pantry
LOT 0.28 acre(s)
LOT DESCRIPTION Corner Lot
MLS STATUS Active
PARKING Attached
STYLE Contemporary, Tri-level
TAXES 5824
UTILITIES Cable Available
MORTGAGE CALCULATOR
   

TOTAL MONTHLY PAYMENT

0
P
I
*Estimate only
Listed with EXIT Realty HGM

Information is supplied by seller and other third parties and has not been verified.

Copyright 2026 South Central Wisconsin MLS Corporation. All rights reserved.

IDX information is provided exclusively for consumers’ personal, non-commercial use and may not be used for any purpose other than to identify prospective properties consumers may be interested in purchasing.

This IDX solution is (c) Diverse Solutions 2026.


SATELLITE VIEW



 
CONTACT US ABOUT 1515 CALICO LANE
 / 
We respect your online privacy and will never spam you. By submitting this form with your telephone number you are consenting for Derek Kavanaugh to contact you even if your name is on a Federal or State "Do not call List".