Wisconsin Special Properties Is Ready To Help You Buy Or Sell! Call Us Today, (920) 948-4910

5327 S Sandpiper Lane, La Crosse, WI 54601 (MLS # 2021026)

Brought to you by Wisconsin Special Properties LLC
Save to Favorites
Print
Share
PRICE $79,900 dsIDX morgage calculator
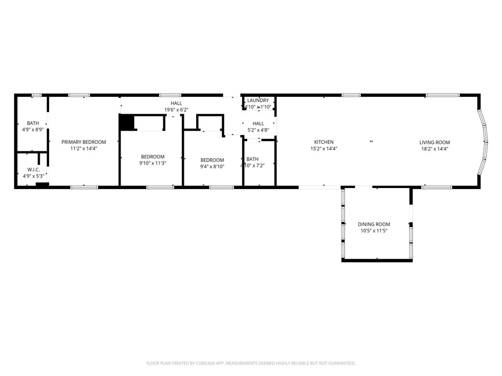
BEDS 3
BATHS 2
HOME SIZE 1,175 sqft
LOT SIZE n/a

This home offers a comfortable and functional layout with an open-concept living room and kitchen- perfect for everyday living and entertaining. The spacious living room is filed with natural light thanks to four large windows, creating a bright and inviting atmosphere from the moment you step inside. The kitchen flows seamlessly into the main living area, providing great sightlines and a connected feel throughout the home. With three bedrooms and two full bathrooms, there's plenty of space for guests, or even a home office setup. Whether you're looking to downsize, invest, or find an affordable place to call home, this property offers a great opportunity in a convenient La Crosse location.

LAST UPDATED 4/17/2026 YEAR BUILT 1994
COUNTY La Crosse STATUS Active
PROPERTY TYPE(S) Mobile/Manufactured

SCHOOLS
School District LaCrosse
Elementary School Call School District
Jr. High School Call School District
High School Call School District


ADDITIONAL DETAILS
AIR Central Air
AIR CONDITIONING Yes
APPLIANCES Oven, Range, Refrigerator
HEAT Forced Air
INTERIOR Kitchen Island
LOT DESCRIPTION Corner Lot
MLS STATUS Active
STYLE Ranch
MORTGAGE CALCULATOR
   

TOTAL MONTHLY PAYMENT

0
P
I
*Estimate only
Listed with NextHome Prime Real Estate

Information is supplied by seller and other third parties and has not been verified.

Copyright 2026 South Central Wisconsin MLS Corporation. All rights reserved.

IDX information is provided exclusively for consumers’ personal, non-commercial use and may not be used for any purpose other than to identify prospective properties consumers may be interested in purchasing.

This IDX solution is (c) Diverse Solutions 2026.


SATELLITE VIEW



 
CONTACT US ABOUT 5327 S SANDPIPER LANE
 / 
We respect your online privacy and will never spam you. By submitting this form with your telephone number you are consenting for Derek Kavanaugh to contact you even if your name is on a Federal or State "Do not call List".